O PROJEKCIE
O PROJEKCIE
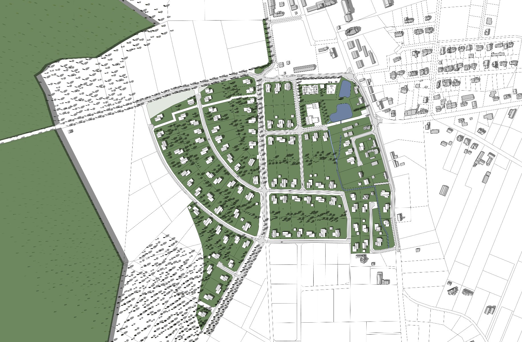
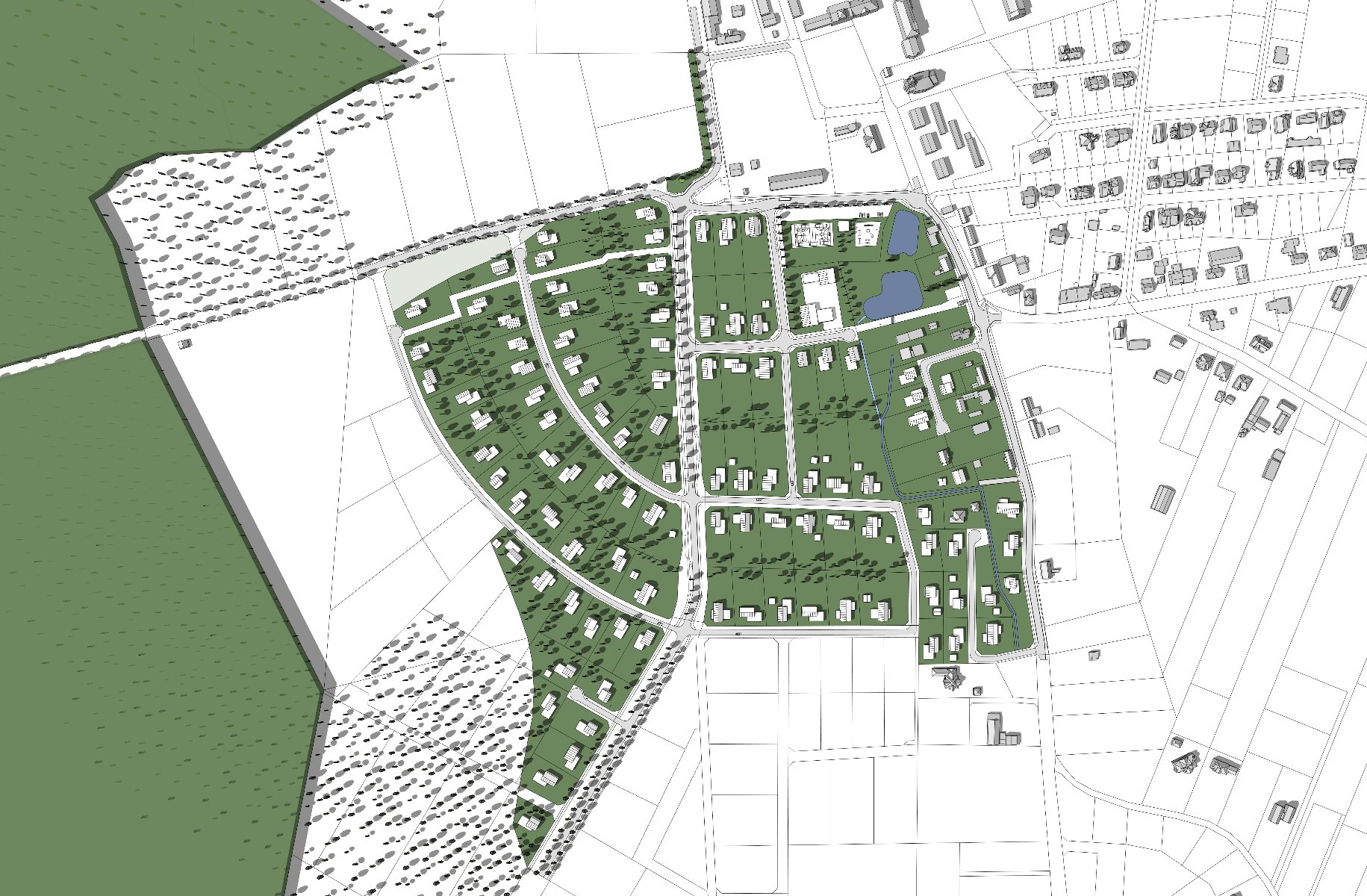
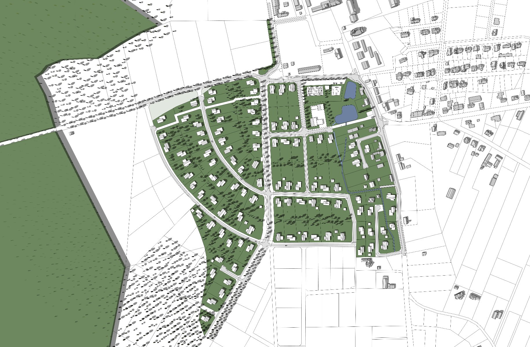
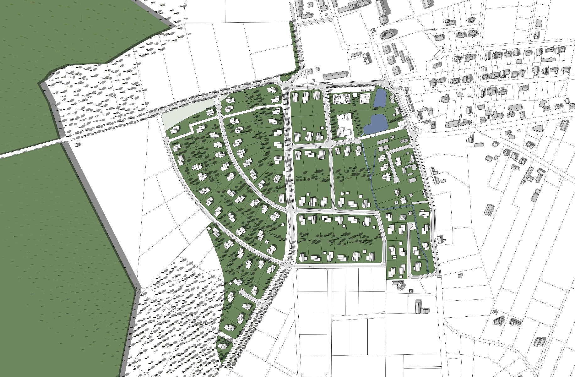
Głównym celem planu jest stworzenie osiedla zabudowy mieszkaniowej jednorodzinnej o odpowiednich parametrach uwzględniających walory przyrodnicze i krajobrazowe terenu, w tym sąsiedztwo rezerwatu przyrody "Meteoryt Morasko".
STAN PRAC NAD PROJEKTEM
STAN PRAC NAD PROJEKTEM
1. PRZYSTĄPIENIE DO SPORZĄDZENIA - zakończono
2. KONSULTACJE SPOŁECZNE I etap - zakończono
3. PRACE PROJEKTOWE - zakończono
4. KONSULTACJE SPOŁECZNE II etap - zakończono
5. OPINIOWANIE I UZGADNIANIE - zakończono
6. I WYŁOŻENIE DO PUBLICZNEGO WGLĄDU - zakończono
7. II WYŁOŻENIE DO PUBLICZNEGO WGLĄDU - zakończono
8. UCHWALENIE - zakończono
_____________________________________________________________________________________________
UCHWALENIE
UCHWALENIE
W dniu 2 września 2025 r. Rada Miasta Poznania podjęła uchwałę nr XXIII/415/IX/2025 w sprawie miejscowego planu zagospodarowania przestrzennego obszaru "Morasko - Radojewo - Umultowo" Morasko część B w Poznaniu.
Załączniki
- Uchwała
- Uzasadnienie
- Rysunek planu
UCHWALENIE
_____________________________________________________________________________________________
UCHWALENIE
W dniu 29 lipca 2025 r. przekazano projekt uchwały w sprawie miejscowego planu zagospodarowania przestrzennego obszaru "Morasko - Radojewo - Umultowo" Morasko część B w Poznaniu do Biura Rady Miasta w celu jego uchwalenia.
Załączniki
- Projekt uchwały
- Projekt uzasadnienia
- Projekt rysunku
- Prognoza oddziaływania na środowisko
- Wykaz uwag I wyłożenie
- Wykaz uwag II wyłożenie
UZGADNIANIE Z CENTRALNYM PORTEM KOMUNIKACYJNYM
_____________________________________________________________________________________________
UZGADNIANIE Z CENTRALNYM PORTEM KOMUNIKACYJNYM
W dniu 21 maja 2025 r. wystąpiono do Centralnego Portu Komunikacyjnego o uzgodnienie projektu mpzp obszaru "Morasko -Radojewo - Umultowo" Morasko część B w Poznaniu (w związku z art. 7 ustawy z dnia 4 kwietnia 2025 r. o zmianie ustawy o planowaniu i zagospodarowaniu przestrzennym oraz niektórych innych ustaw, która weszła w życie 7 maja 2025 r.)
Załączniki
- Projekt rysunku
- Projekt uchwały
- Projekt uzasadnienia
- Prognoza oddziaływania na środowisko
II WYŁOŻENIE DO PUBLICZNEGO WGLĄDU
____________________________________________________________________
DYSKUSJA PUBLICZNA
Odbędzie się 8 maja 2025 r., o godzinie 17:00
Dyskusja odbędzie się w formie zdalnej na platformie ZOOM
Dane potrzebne do logowania:
https://zoom.us/j/91214479541?pwd=2RFc0uj44oJ7cdSgXcRYpLrzMq0yKe.1
Meeting ID: 912 1447 9541
Passcode: 917430
WAŻNA INFORMACJA!
Spotkania są nagrywane w celu zapewnienia prawidłowości przeprowadzenia procedury planistycznej oraz zapewnienia sprawnego, niczym niezakłóconego przebiegu spotkania. Udział w spotkaniu jest dobrowolny i równoznaczny z wyrażeniem zgody na przetwarzanie Państwa danych osobowych. Informujemy, że mają Państwo prawo nie wyrażenia zgody na nagrywanie Państwa wizerunku i głosu. W takim przypadku prosimy Państwa o wyłączenie kamery oraz mikrofonu i wzięcie udziału w dyskusji na publicznym czacie.
____________________________________________________________________
II WYŁOŻENIE DO PUBLICZNEGO WGLĄDU
od 25 kwietnia 2025 r. do 23 maja 2025 r.
Dyskusja publiczna nad przyjętymi w projekcie planu miejscowego rozwiązaniami odbędzie się w dniu 8 maja 2025 r. o godz. 17:00. za pomocą środków porozumiewania się na odległość przez jednoczesną transmisję obrazu i dźwięku - online.
Szczegółowe informacje dotyczące przeprowadzenia dyskusji publicznej zostaną podane przed dyskusją na stronie www.mpu.pl oraz na profilu Facebook Pracowni https://www.facebook.com/mpu.poznan/.
Uwagi do projektu mpzp należy składać w nieprzekraczalnym terminie do dnia 6 czerwca 2025 r.
Załączniki
- Obwieszczenie
- Projekt rysunku
- Projekt uchwały
- Projekt uzasadnienia
- Prognoza oddziaływania na środowisko z załącznikami
- Wykaz uwag I wyłożenie
- Prezentacja multimedialna Maq - dyskusja publiczna - maj 2025
WYŁOŻENIE DO PUBLICZNEGO WGLĄDU
____________________________________________________________________
DYSKUSJA PUBLICZNA
Odbędzie się 4 lutego 2025 r., o godzinie 17:00
Dyskusja odbędzie się w formie zdalnej na platformie ZOOM
Dane potrzebne do logowania:
https://zoom.us/j/95784738208?pwd=OA6FgZk6WyuBTORHzSD4pFIQkM3WO4.1
Meeting ID: 957 8473 8208
Passcode: 685949
WAŻNA INFORMACJA!
Spotkania są nagrywane w celu zapewnienia prawidłowości przeprowadzenia procedury planistycznej oraz zapewnienia sprawnego, niczym niezakłóconego przebiegu spotkania. Udział w spotkaniu jest dobrowolny i równoznaczny z wyrażeniem zgody na przetwarzanie Państwa danych osobowych. Informujemy, że mają Państwo prawo nie wyrażenia zgody na nagrywanie Państwa wizerunku i głosu. W takim przypadku prosimy Państwa o wyłączenie kamery oraz mikrofonu i wzięcie udziału w dyskusji na publicznym czacie.
_____________________________________________________________________________________________
WYŁOŻENIE DO PUBLICZNEGO WGLĄDU
od 24 stycznia 2025 r. do 14 lutego 2025 r.
Dyskusja publiczna nad przyjętymi w projekcie planu miejscowego rozwiązaniami odbędzie się w dniu 4 lutego 2025 r. o godz. 17:00. za pomocą środków porozumiewania się na odległość przez jednoczesną transmisję obrazu i dźwięku - online.
Szczegółowe informacje dotyczące przeprowadzenia dyskusji publicznej zostaną podane przed dyskusją na stronie www.mpu.pl oraz na profilu Facebook Pracowni https://www.facebook.com/mpu.poznan/.
Uwagi do projektu mpzp należy składać w nieprzekraczalnym terminie do dnia 28 lutego 2025 r.
Załączniki
- Obwieszczenie
- Projekt rysunku
- Projekt uchwały
- Uzasadnienie
- Prognoza oddziaływania na środowisko z załącznikami
- Prezentacja multimedialna Maq - dyskusja publiczna - luty 2025
OPINIOWANIE I UZGADNIANIE
_____________________________________________________________________________________________
OPINIOWANIE I UZGADNIANIE
W dniu 21 października 2024 r. wystąpiono o opinie i uzgodnienia projektu mpzp obszaru "Morasko - Radojewo - Umultowo" Morasko część B w Poznaniu do właściwych organów.
Załączniki
- Projekt rysunku
- Projekt uchwały
- Projekt uzasadnienia
- Prognoza oddziaływania na środowisko z załącznikami
KONSULTACJE SPOŁECZNE II ETAP - 25 marca 2024r.
____________________________________________________________________
Szanowni Państwo,
w dniu 25 marca 2024r. w ramach drugiego etapu konsultacji odbędzie się zdalne spotkanie informacyjne dotyczące projektu miejscowego planu zagospodarowania przestrzennego "Morasko - Radojewo - Umultowo" Morasko część B w Poznaniu.
Materiały informacyjne dotyczące projektu zostały opublikowane na stronie internetowej Miasta Poznania oraz na stronie Miejskiej Pracowni Urbanistycznej w Poznaniu.
Spotkanie informacyjne odbędzie się w dniu 25 marca 2024 r. o godzinie 17.00 w trybie zdalnym, na platformie ZOOM. W spotkaniu można będzie wziąć udział korzystając z odpowiedniego linku lub logując się przy pomocy id i hasła spotkania na platformie ZOOM. Poniżej niezbędne dane do udziału w spotkaniu.
https://zoom.us/j/93635940619?pwd=emVGemUzZkEyRUpCdWdvcG9hWWxidz09
Meeting ID: 936 3594 0619
Passcode: 129515
Konsultacje społeczne dotyczące projektu mpzp "Morasko - Radojewo - Umultowo" Morasko częśc B w Poznaniu potrwają od 25 marca do 9 kwietnia 2024 r.
Kontakt:
Kwestie merytoryczne - Miejska Pracownia Urbanistyczna w Poznaniu:
Magdalena Drabent - mdrabent@poznan.mpu.pl; Katarzyna Janicka - kjanicka@poznan.mpu.pl; Ewa Wielgus - ewielgus@poznan.mpu.pl.
Telefon kontaktowy do Informacji MPU: 61 639 64 60
Kwestie organizacyjne: Gabinet Prezydenta Urzędu Miasta Poznania: Agata Przybylak, tel. 61 878 50 95.
Wnioski dotyczące planu można przesyłać:
- pocztą elektroniczną na adres: mpu@poznan.mpu.pl
- pocztą tradycyjną na adres: Miejska Pracownia Urbanistyczna, ul. za Bramką 1, 61-842 Poznań
Serdecznie zapraszamy do udziału w konsultacjach!
Załączniki
- Prezentacja multimedialna - II etap konsultacji społecznych (marzec2024)
- Maq - informacja dotycząca projektu mpzp
- Granica projektu mpzp Maq
- Raport_IIetapkonsultacji_maj2024
PRZYSTĄPIENIE
_____________________________________________________________________________________________
PRZYSTĄPIENIE
W dniu 9 września 2003 r. Rada Miasta Poznania podjęła uchwałę w sprawie przystąpienia do sporządzenia miejscowego planu zagospodarowania przestrzennego "Morasko - Radojewo - Umultowo" w Poznaniu.
Metryczka
Informacja pobrana do BIP automatycznie z elektronicznego systemu zarządzania dokumentacją Urzędu Miasta Poznania.
Ostatnie pobranie danych: 2022-10-04 10:38